- Woonoppervlakte
- Circa 101 m²
- Perceeloppervlakte
- Circa 101 m²
- Bouwjaar
- Gebouwd in 1897
- Aantal kamers
- 6 kamers (3 slaapkamers)
KARAKTERISTIEKE COMPACTE STADSWONING MET BESLOTEN TUIN.
Stap binnen in deze sfeervolle COMPACTE STADSWONING, gebouwd in 1897, die met zijn unieke uitstraling en charmante details een warm thuis biedt. Achter de ingetogen voorgevel gaat een verrassend karaktervol huis schuil met besloten ACHTERTUIN gelegen binnen de stadswallen van Steenwijk. Vanuit de voordeur ben je in enkele stappen op het bruisende marktplein van Steenwijk.
INDELING WONING:
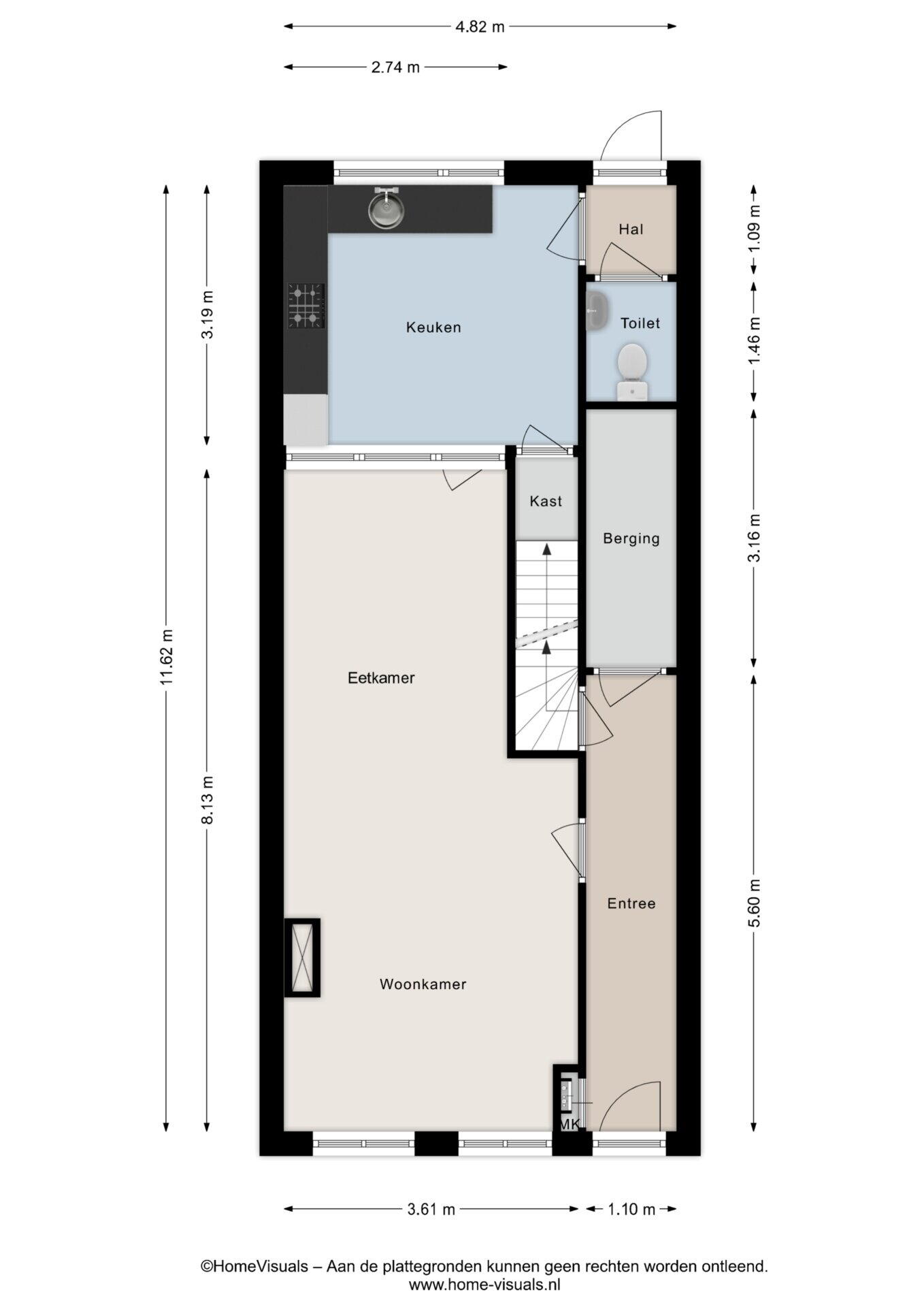
Entree met gang, garderobe, meterkast, berging en trapopgang naar de verdieping. Woonkamer met houten parket vloer, schouw met sierhaard en hoog plafond. Achter de woonkamer bevindt zich de woonkeuken met diverse inbouwapparatuur waaronder een 4 pits gasfornuis, combi-oven, koelkast, vriezer en vaatwasser. In de keuken bevindt zich ook een voorraadkast met toegang tot de kelder. Naast de keuken is een hal naar de toiletruimte en een deur naar de besloten zonnige tuin op het zuidwesten.
1e verdieping: Overloop met 2 ruime slaapkamers en een extra kamer die te gebruiken is als thuiswerkkamer, inloopkast of kinderkamer. Daarnaast is er een kast met opstelplaats voor de cv-ketel en aansluiting voor witgoed. De badkamer is voorzien van een douche, wastafel en toilet.
ALGEMEEN:
Deze verrassende STADSWONING is in 2024 geschilderd en in 2023 op de verdieping voorzien van nieuw dubbelglas. De woning wordt verwarmd met een Valliant CV-ketel van +/- 7 jaar oud. De woning heeft een energielabel C.
De besloten achtertuin is door de woning bereikbaar, beschikt over een stenen berging en biedt veel privacy en rust terwijl het toch gelegen is in de binnenstad van Steenwijk waardoor je kunt genieten van het beste van twee werelden.
Steenwijk is gelegen in de kop van Overijssel, dichtbij verschillende natuurparken zoals "De Weerribben," het "Drents-Friese Woud," en "Giethoorn." Er zijn uitstekende fiets- en wandelgebieden in de buurt. Bovendien zijn de Randstad en grotere steden goed bereikbaar via zowel het spoor als de snelwegen. Het intercitystation bevindt zich op slechts 10 minuten loopafstand, en met de auto zijn plaatsen als Heerenveen (A32) op ongeveer 15 minuten rijden, Zwolle (A32/A28) op ongeveer 25 minuten rijden, en de Randstad (Amsterdam) op ongeveer 75 minuten rijden goed te bereiken.
Overdracht
- Vraagprijs
- € 249.000 k.k.
- Status
- Verkocht
- Aanvaarding
- In overleg
Bouw
- Object type
- Eengezinswoning, tussenwoning
- Soort bouw
- Bestaande bouw
- Bouwjaar
- 1897
- Soort dak
- Zadeldak bedekt met pannen
Oppervlakte en inhoud
- Woonoppervlakte
- 101 m²
- Perceeloppervlakte
- 101 m²
- Inhoud
- 407 m³
- Overige inpandige ruimte
- 9 m²
- Externe bergruimte
- 6 m²
Indeling
- Aantal kamers
- 6 kamers (3 slaapkamers)
- Aantal badkamers
- 1 badkamer
- Badkamervoorzieningen
- Toilet, douche, wastafel
- Aantal woonlagen
- 3 woonlagen
- Voorzieningen
- Buitenzonwering, dakraam, glasvezel kabel
Energie
- Energielabel
- C
- Energielabel registratie
- 25-07-2025
- Isolatie
- Gedeeltelijk dubbel glas
- Verwarming
- Cv-ketel
- Warm water
- Cv-ketel
- Cv ketel
- Valliant combiketel gas gestookt uit 2017 (eigendom)
Buitenruimte
- Ligging
- In centrum
- Tuin
- Achtertuin
- Afmetingen achtertuin
- 38 m² (7.5 meter diep en 5 meter breed)
- ligging tuin
- Gelegen op het zuidwesten
Bergruimte
- Schuur / berging
- Vrijstaand steen
Garage
- Soort garage
- Geen garage
Parkeergelegenheid
- Soort parkeergelegenheid
- Openbaar parkeren
Energieverbruik in Steenwijk
Energielabel deze woning
Energielabel C
Publicatie energielabel: 25-07-2025
Stroomverbruik per jaar
(Gemiddelde tussenwoning in Steenwijk)
Gasverbruik per jaar
(Gemiddelde tussenwoning in Steenwijk)
* Cijfers zijn afkomstig van het CBS en bedoeld als indicatie en kunnen verschillen voor deze woning
Indicatie hypotheeklasten
Eigen inleg:
Spaargeld / overwaarde
Rente:
Laagste 10-jaars rente
Laagste 10-jaars rente
2,76% - Centraal Beheer Groen... - NHG
2,98% - Centraal Beheer Groen... - 80%
Laagste 20-jaars rente
3,19% - Centraal Beheer Groen... - NHG
3,31% - Centraal Beheer Groen... - 80%
Laagste 30-jaars rente
3,34% - Centraal Beheer Groen... - NHG
3,47% - Centraal Beheer Groen... - 80%
Hypotheek:
Bruto maandlasten: € 0 p/m
Netto maandlasten: € 0 p/m
Hoe berekenen we dit?
Het rentepercentage is gebaseerd op de laagste 10-jaars vaste rente voor één hypotheekdeel. De vermelde rente (2.76% met NHG) is gecontroleerd op 08-09-2025. Deze berekening is gebaseerd op een annuïteitenhypotheek die volledig wordt afgelost, waarbij de maandlasten gedurende de gehele looptijd gelijk blijven. De werkelijke rente en netto maandlasten kunnen variëren, afhankelijk van uw persoonlijke situatie en de hypotheekverstrekker. Raadpleeg een financieel adviseur voor een nauwkeurige berekening en advies. Aan deze berekening kunnen geen rechten worden ontleend; het dient enkel als indicatie.
Documentatie
Kadastrale kaart
Leefomgeving
Brochure
Plattegronden PDF
BAG uittreksel
Bekijk onze website
Bezichtiging
Bod uitbrengen
Waardebepaling
Zoekopdracht
Alles downloaden
Zonnegrenzen bekijken
Op de kaart
Inwoners in Steenwijk
Cijfers voor postcodegebied 8331
- Totaal aantal inwoners
- 10370 inwoners
- Mannen
- 49%
- Vrouwen
- 51%
Inwoners in Steenwijk
Cijfers voor postcodegebied 8331
- tot 15 jaar
- 13%
- 15 tot 25 jaar
- 11%
- 25 tot 35 jaar
- 22%
- 45 tot 65 jaar
- 27%
- 65 en ouder
- 27%
Huishoudens in Steenwijk
Cijfers voor postcodegebied 8331
- Eenpersoons zonder kinderen
- 46%
- Meerpersoons zonder kinderen
- 28%
- Huishoudens zonder kinderen
- 74%
Huishoudens in Steenwijk
Cijfers voor postcodegebied 8331
- Huishoudens met één kind
- 8%
- Huishoudens met meerdere kinderen
- 19%
- Huishoudens met kinderen
- 27%
Woningen in Steenwijk
Cijfers voor postcodegebied 8331
- Woningen voor 1945
- 23%
- Woningen tussen 1945 en 1965
- 17%
- Woningen tussen 1965 en 1975
- 12%
- Woningen tussen 1975 en 1985
- 11%
- Woningen tussen 1985 en 1995
- 11%
Woningen in Steenwijk
Cijfers voor postcodegebied 8331
- Woningen tussen 1995 en 2005
- 16%
- Woningen tussen 2005 en 2015
- 8%
- Woningen na 2015
- 1%
- Huurwoningen
- 60%
- Koopwoningen
- 40%
Overige in Steenwijk
Cijfers voor postcodegebied 8331
- Gemiddelde WOZ waarde
- € 166.000,-
- Personen onder de 65 met uitkering
- 12%
Overige in Steenwijk
Cijfers voor postcodegebied 8331
- Adressen per km²
- 1272
- Stedelijkheid (schaal 1 op 5)
- 60%
Korte feiten over Steenwijk
Steenwijk (Nedersaksisch: Steenwiek of Stienwiek) is een stad in de Nederlandse provincie Overijssel. Het is met 17.115 inwoners de grootste plaats in de gemeente Steenwijkerland en na Kampen de grootste plaats in de Kop van Overijssel.
Hét makelaarshuis van Steenwijk
Op zoek naar een makelaar?
Een huis verkopen of kopen is een belangrijke beslissing in het leven. Het is essentieel om deskundig en objectief advies te krijgen. We brengen in kaart wat u belangrijk vindt en welke wensen u heeft. Een open gesprek vormt de basis voor onze aanpak. Luisteren is een cruciaal onderdeel van ons vak! Wij taxeren de woning en adviseren u over de te hanteren vraagprijs. In overleg met u bepalen we het verkooptraject, inventariseren we de sterke en mindere punten van de woning en stellen we aanbiedingsteksten op. Nadat de fotopresentatie is gemaakt, kan de verkoop daadwerkelijk beginnen. Terwijl wij uw woning verkopen, kunt u zich richten op de volgende stap in uw leven. Aan ons de taak om een geschikte koper voor uw woning te vinden.
HetMakelaarshuis krijgt zijn meeste klanten door aanbevelingen. Waarom? Omdat wij de meest betrouwbare dienstverlening bieden aan onze relaties en zij ons waarderen om onze kennis, bevlogenheid, bereikbaarheid en de zorg en aandacht die wij aan hen besteden.
Bel ons vandaag nog en ervaar het zelf.
Nieuwste reviews
-
Oostercluft 46
Beide makelaars van het Makelaarshuis Steenwijk waren deskundig, zeer vriendelijk en toegankelijk. De heer Willemsen was zowel aankoopmakela...
-
Verlaatseweg 41
Door Edwin en Nick kregen wij een realistisch beeld van de huidige woningmarkt. De service was echt top, elke vraag die we hadden werd tot o...
-
Bakkersveld 29
De contacten met Edwin, Nick en Jan waren erg plezierig. We konden altijd bij ze terecht als we ergens even hulp bij nodig hadden of ergens...